Projekt

Vila 5 minút pešo od pláže

Development plán

plán

Projekt je koncipovaný ako súbor moderných víl s dôrazom na súkromie, funkčnosť a prepojenie s prírodou. Každá vila má vlastný vstup, záhradu a súkromný bazén, zatiaľ čo spoločné priestory poskytujú pohodlný prístup k bezpečnostným a servisným zónam.
Rozvrhnutie celého areálu zabezpečuje prirodzený tok pohybu, dostatok zelene a príjemné súkromie medzi jednotlivými vilami.

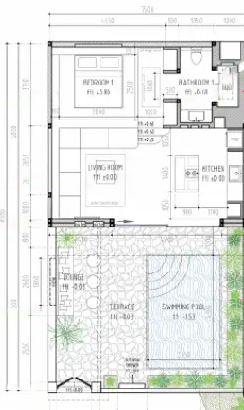
Pôdorys

nákres

Každá vila je navrhnutá s dôrazom na praktickosť, otvorenosť a svetlo. Dispozícia ponúka priestrannú hlavnú spálňu, svetlú obývaciu časť prepojenú s kuchyňou a priamy prístup k bazénu so záhradou. Minimalistické línie, veľkoformátové presklenie a prepojenie interiéru s exteriérom vytvárajú vzdušný a harmonický priestor.

Proces výstavby

Začiatok

Každá vila je navrhnutá a postavená s dôrazom na detail, kvalitu a harmonické prepojenie s prírodou. Proces výstavby zahŕňa precíznu architektúru, starostlivý výber materiálov a tradičné remeselné spracovanie v kombinácii s modernými technológiami.

Výsledok

Luxusná vila s jednou spálňou

Popis

Luxusná vila s jednou spálňou ponúka ideálne útočisko pre páry alebo priateľov, ktorí hľadajú súkromie, komfort a blízkosť oceánu. Len 5 minút chôdze od pláže Seseh si môžete vychutnať pokojnú atmosféru tropického prostredia s vôňou mora a spevom vtákov. Vila spája moderný dizajn s autentickým balijským štýlom a poskytuje všetko, čo potrebujete pre bezstarostnú dovolenku.

Vybavenie & detaily

  • Súkromný vonkajší bazén

  • Výhľad na bazén a do záhrady

  • Plne vybavená kuchyňa

  • Pracovný kútik vhodný aj na home office

 

Lokalita

Vila sa nachádza len pár minút od pláže Seseh, v blízkosti surfových škôl, jógových štúdií, reštaurácií, kaviarní a barov. Je ideálnym miestom pre tých, ktorí chcú spojiť relax pri mori s pohodlím moderného bývania.



Kontaktujte nás